Scorrevoli VISION: fondersi con l'ambiente che ci circonda

VISION

Massima luce, design senza barriere

Lo scorrevole alzante VISION è un sistema che consente la realizzazione di ampie superfici vetrate, con larghezze superiori ai 6 metri e un’altezza fino a 2,60 metri. Ideale per valorizzare gli ambienti con luce naturale, è perfetto sia per contesti residenziali che commerciali.

Grazie al suo design essenziale e all’assenza di barriere, VISION garantisce un’estetica moderna, un’eccellente maneggevolezza e prestazioni avanzate in termini di isolamento termico. Che si tratti di nuove costruzioni o ristrutturazioni, offre una soluzione efficace per chi desidera spazi aperti e luminosi con il massimo comfort abitativo.

Che si tratti di nuove costruzioni o ristrutturazioni, offre una soluzione efficace per chi desidera spazi aperti e luminosi con il massimo comfort abitativo.

Permeabilità 
all'aria secondo

Standard UNI EN12207:
CLASSE 4

Tenuta all'acqua

Standard UNI EN 12208:5A

Resistenza al carico del vento

Standard UNI EN 12210:B2

Abbattimento acustico secondo

Secondo 
UNI EN 10140-2
3 fino a Rw=45dB

Valore Uf del nodo

=1,48 W/mqK

VISION LUCE 

Massima trasparenza, più luce

VISION LUCE è un sistema scorrevole innovativo che riduce al minimo l’ingombro del profilo, ampliando la superficie vetrata e migliorando l’ingresso della luce naturale.

Grazie all’anta tutto vetro, lo spazio perimetrale solitamente occupato dal profilo viene ridotto, offrendo un design essenziale e moderno.

La versione con specchiatura fissa interamente in vetro non solo au- menta la luminosità degli ambienti, ma migliora anche l’isolamento termico e acustico, eliminando la barriera visiva tipica dei serramenti tradizionali. 

Una soluzione ideale per chi cerca massima trasparenza e continuità visiva tra interno ed esterno.

Permeabilità 
all'aria secondo

Standard UNI EN12207:
CLASSE 4

Tenuta all'acqua

Standard UNI EN 12208:3A

Resistenza al carico del vento

Standard UNI EN 12210:B2 - C2

Abbattimento acustico secondo

Secondo 
UNI EN 10140-2
3 fino a Rw=45dB

Valore Uf del nodo

=1,48 W/mqK

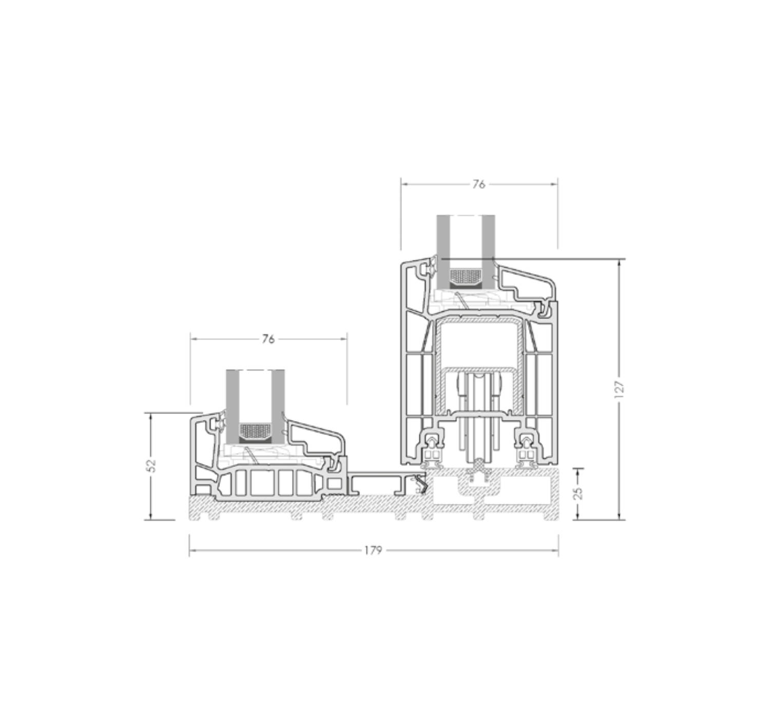
VISION 76 

Design, efficienza e sicurezza

Alzante scorrevole VISION 76 è più di una semplice finestra: unisce estetica raffinata, tecnologia avanzata ed elevate prestazioni energetiche. Il suo design elegante e senza tempo si integra perfettamente in qualsiasi ambiente, offrendo un’ampia superficie vetrata per una vista panoramica senza ostacoli.

Grazie alla sua struttura robusta e alla ferramenta di alta qualità, garantisce massima sicurezza e protezione. L’innovativa tecnologia costruttiva assicura un eccellente isolamento termico, contribuendo alla riduzione dei consumi energetici e dell’impatto ambientale. 

Una soluzione ideale per chi cerca comfort, efficienza e un’estetica moderna, con un’apertura verso nuovi orizzonti abitativi.

Permeabilità 
all'aria secondo

Standard UNI EN12207:
CLASSE 4

Tenuta all'acqua

Standard UNI EN 12208:5A - 9A

Resistenza al carico del vento

Standard UNI EN 12210:C1 - B2

Abbattimento acustico secondo

Secondo 
UNI EN 10140-2
3 fino a Rw=45dB

Valore Uf del nodo

=1,4 W/mqK

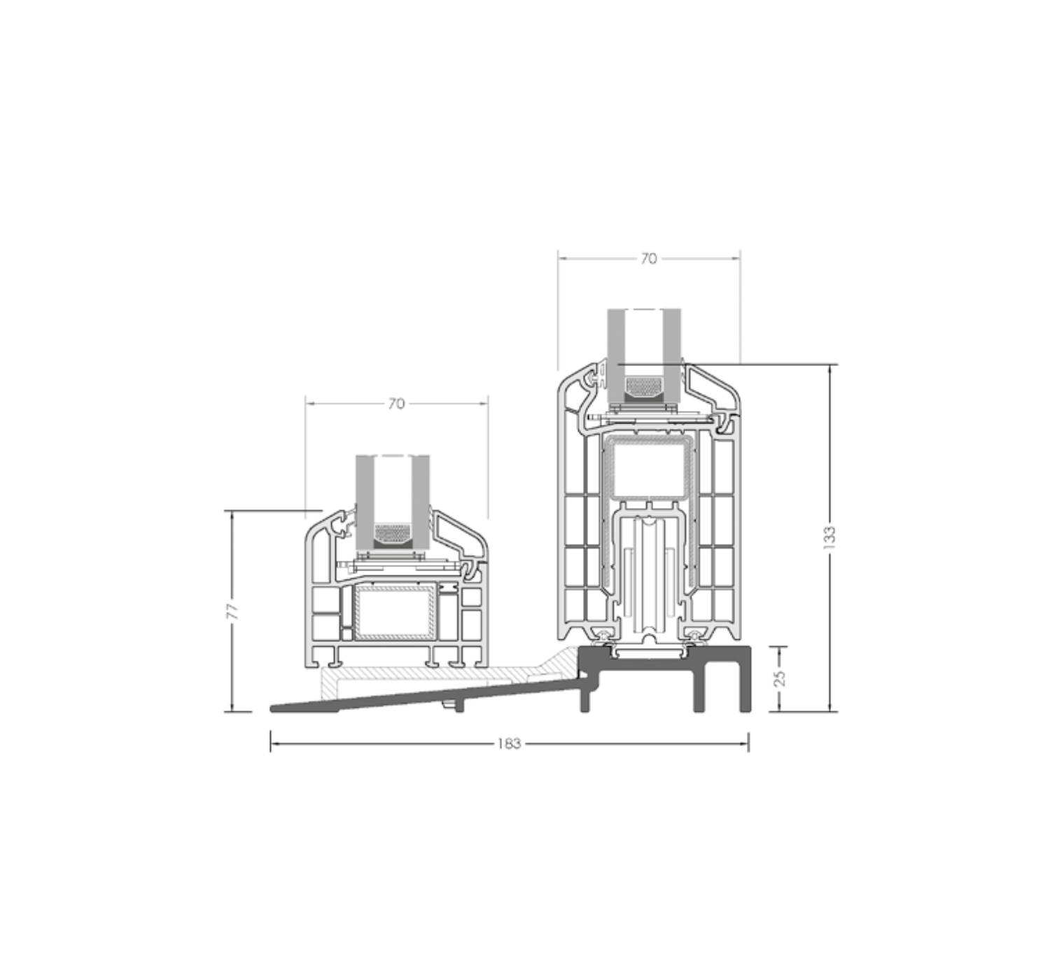
VISION 76 LUCE 

Design, efficienza e sicurezza

Alzante scorrevole VISION 76 LUCE è una finestra che unisce estetica raffinata, tecnologia avanzata e alte prestazioni energetiche. Il suo design elegante offre ampie superfici vetrate per una vista panoramica senza ostacoli. L’anta tutto vetro riduce il profilo, migliorando luminosità, isolamento termico e acustico,e eliminando le barriere visive tipiche dei serramenti tradizionali.

Grazie alla struttura robusta e alla ferramenta di alta qualità, offre sicurezza e protezione, riducendo i consumi energetici e l’impatto ambientale. 

Una soluzione ideale per chi cerca comfort, efficienza e un’estetica moderna.

Permeabilità 
all'aria secondo

Standard UNI EN12207:
CLASSE 4

Tenuta all'acqua

Standard UNI EN 12208:5A - 9A

Resistenza al carico del vento

Standard UNI EN 12210:C1 - B2

Abbattimento acustico secondo

Secondo 
UNI EN 10140-2
3 fino a Rw=45dB

Valore Uf del nodo

=1,48 W/mqK

SISTEMA AST

Perchè lo scorrevole con anta ribalta?

Per chi non vuole rinunciare alla bellezza di un serramento scorrevole che permette di realizzare ampie vetrature, ma non vuole neanche rinunciare alle prestazioni specifiche dei sistemi finestra e portafinestra, la Scorrevole AST traslante offre un compromesso eccezionale. L’applicazione esterna del sistema di scorrimento fa si che i nottolini della ferramenta a nastro lavorino garantendo la tenuta e la resistenza del sistema serramento ad anta battente.

Prestazioni Certificate
(Valori ottenuti su campione tipo testato in laboratorio)

> Permeabilità all’aria secondo UNI EN 12207 - Classe4
> Tenuta all’acqua secondo UNI EN 12208 - 5A - E1800
> Resistenza al carico del vento UNI EN 12210 - B2 - fino a 5C
> Abbattimento acustico secondo UNI EN 10140-2-3
> Valore Uf del nodo = 1,3 W/m2K - 1,2 W/m2K

X